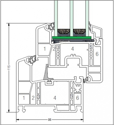
The initial revolutionary version of GENEO besides its manufacturing of the high technology material RAU-FIBRO has middle gasket and is extremely suitable for energy efficient houses:
-six-chamber profile;
-construction width: 86 mm which allows the use of highly effective windows with triple glass;
-heat isolation of the profile Uf up to 0,85 W m2K
when there is no reinforcement metal profile;
-noise insulation class
(VDI 2719) : up to SSK
5 (glass 50db = Rw, P
47db).

















